Dettagli
- Riferimento646
- ContrattoVendita
- TipologiaAppartamento
- Località Forte Dei Marmi - Centro
- Superficie: 90 mq
- Prezzo: € 950.000
- Numero Vani: 0.0
- Numero Camere: 2
- Numero Bagni: N.D.
- Posto Auto: N.D.
- Piscina: No
- Giardino: No
- Ascensore: No
- Cucina: No
- Classe Energetica: In fase di rilascio
- IPE: N.D.
- EPI: N.D.
- EPE: N.D.
- P.E. Rinnovabile: N.D.
- P.E. Non Rinnovabile: N.D.
- Prestazione Estate: N.D.
- Prestazione Inverno: N.D.
- Edif. Energia quasi 0: N.D.
- Riscaldamento: Autonomo
- Aria Condizionata: Sì
- Distanza dal mare: N.D.
- Distanza dal centro: N.D.
Descrizione
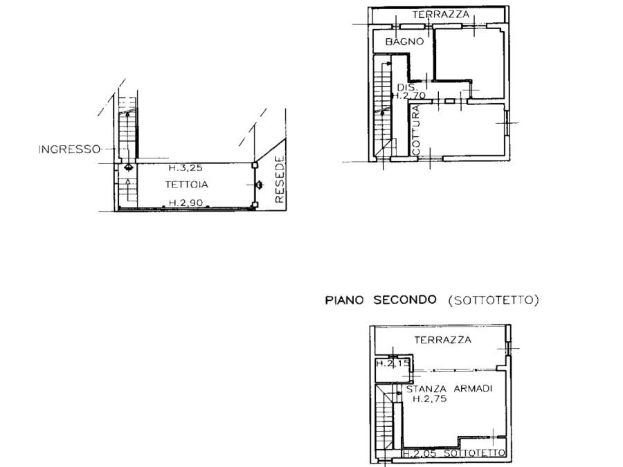
In ottima posizione a Forte dei Marmi, proponiamo in vendita un interessante Appartamento di circa 90 mq, sviluppato su tre livelli, che coniuga indipendenza e comfort.
L'immobile si distingue per l'intelligente distribuzione degli spazi:
Piano Terra: Ingresso con prezioso posto auto privato, una rarità indispensabile nella zona.
Piano Primo: La zona notte, intima e accogliente, ospita due camere matrimoniali, una cameretta versatile (ideale come studio o stanza ospiti) e un ampio bagno finestrato, dotato di vasca e finiture in pietra.
Piano Secondo: Il vero cuore della casa. Un moderno soggiorno openspace con cucina a vista, caratterizzato da alti soffitti con travi bianche a vista e grandi vetrate che inondano l'ambiente di luce naturale. Da qui si accede a una godibile terrazza, perfetta per cene all'aperto o momenti di relax.
La proprietà si presenta in ottime condizioni, dotata di aria condizionata e pronta per essere abitata subito. La soluzione ideale per chi cerca un appoggio al mare pratico e senza spese condominiali eccessive.
















